Fotografía
NeuronaLab
Barcelona
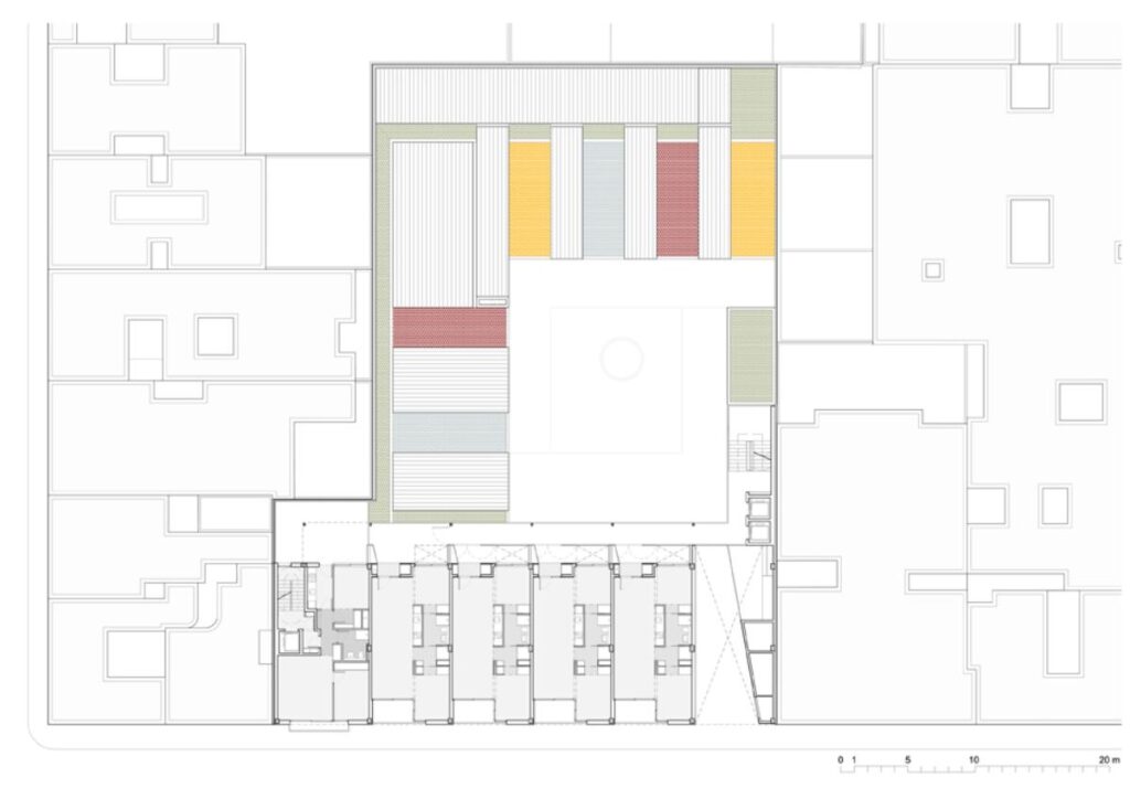
Edificio plurifamiliar de treinta viviendas de alquiler y una escuela infantil en el barrio de la Barceloneta, resultado de un Plan de Mejora Urbana desarrollado en 2011 en colaboración con Ernest Compta.
El proyecto combina la industrialización del sistema constructivo con una propuesta de vivienda flexible. La ubicación central de cocina y baño permite que las estancias se articulen sin jerarquías predefinidas, dejando margen para que cada habitante defina el uso de los espacios.
Una década más tarde, el reportaje documenta cómo las viviendas han sido apropiadas por sus usuarios. Las imágenes muestran la interpretación cotidiana de esa flexibilidad proyectada, revelando cómo el tiempo y la vida consolidan —o transforman— las decisiones arquitectónicas iniciales.
Proyecto completo en: NeuronaLab













